ご来場者限定!ご成約で最大20万円分の家具をプレゼント。アール壁や造作洗面台など、曲線美が彩る空間をぜひご体感ください。

愛知県でリノベーション事業を展開する株式会社sumarch(本社:愛知県名古屋市中村区、代表取締役:鳥居儀彰、以下KULABO)は、マンションリノベーション見学会を2025年10月25日(土)、愛知県名古屋市昭和区にて開催いたします。
実際にKULABOでリノベーションしたオーナー様のお住まいを見学できる「リノベーション見学会」です。間取りや設計の工夫・デザインのアイデアなど、家づくりのヒント盛沢山!写真だけでは分からない素材の質感や雰囲気、リノベーションの魅力をREALにご体感ください!
見学会について、詳しくは特設ページをご確認ください。
https://kulabo.co.jp/events/112
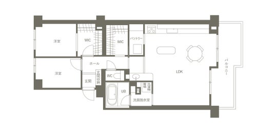
見どころポイント
==DATA==
家族構成:ご夫婦
築年数:40年
リノベーション費用:約1,460万円(2025年施工)
打合せ期間:約3ヶ月
工事期間:約3ヵ月

【before】3LDK

【after】2LDK
■オレンジと木目で魅せる、温かみあるミッドセンチュリーモダンな空間

赤みのある木目やアクセントカラーのオレンジを取り入れ、洗練された印象と温かみを両立。家具や照明との調和により、可愛らしさと落ち着きを兼ね備えた住まいに仕上げました。
■趣味と暮らしをつなぐ、リビングに溶け込むDJブース

キッチンの延長線上に固定型のDJブースを設置。移動式カウンターを組み合わせることで作業スペースとしても活用でき、家族と過ごすリビングの中で趣味を楽しめます。
■梁や洗面にも取り入れた、アールがつくる柔らかな統一感


梁の加工やパントリーの開口、洗面台の天板など、随所にアールをデザイン。直線的になりがちな空間に柔らかさを与え、統一感のある居心地の良い住まいを演出しています。
開催概要
開催日:2025年10月25日(土)
時間:10時~15時
開催場所:愛知県名古屋市昭和区
※オーナー様のプライバシー配慮のため、詳しい住所はご予約いただいた方だけにお伝えしております。
参加費:無料
申込締切:2025年10月24日(金)まで ※事前予約制
見学会の詳細やご予約は、特設イベントページよりご確認ください。
特設イベントページを見る
来場者限定!特典プレゼントあり!
当イベントに来場した後、当社でリノベーションをご成約いただいた方に、成約金額に応じて家具をプレゼント!
★500万~999万のご成約
→家具10万円分プレゼント!
★1,000万円以上のご成約
→家具20万円分プレゼント!
特典規約あり。詳しくは、特設イベントページよりご確認ください。
特設イベントページを見る
KULABOとは

リノベーションスタジオKULABOは愛知県・岐阜県・東京都(一部エリア除く)において、中古戸建、中古マンションのリノベーション・大規模リフォームの提案をしています。
リノベーションを前提とした中古物件のご紹介から、プラン・デザインの提案、施工、アフターメンテナンスまで一貫してサポートします。お客様のニーズやご予算、ライフスタイルに合わせて部分リフォームからフルリノベーション、耐震工事や断熱工事まで幅広くご対応。デザイン性と価格のバランスを取り、可能な限りお客様のご要望を叶えつつ、適正価格でプランを提案します。
会社概要
■会社名
株式会社sumarch
コーポレートサイト:https://sumarch.co.jp/
■代表者
代表取締役 鳥居 儀彰
■ブランド名
リノベーションスタジオKULABO
KULABO HP:https://kulabo.co.jp/
■所在地
本社 〒450-6419 愛知県名古屋市中村区名駅三丁目28番12号 大名古屋ビルヂング19F
TEL:052-526-1395 FAX:052-526-1396
店舗
中村スタジオ/千種スタジオ/昭和スタジオ/緑スタジオ/一宮スタジオ/春日井スタジオ/岡崎スタジオ/長久手スタジオ/豊田スタジオ/恵比寿スタジオ
■設立
2009年11月
■事業内容
不動産再生事業(リフォーム・リノベーション)
■従業員数
250名(2025年4月時点)
ーーーーーーーーーーーーーーーーーーーーーーーーーーーー
■一般の方からのお問合せ先
リノベーションスタジオお客様総合窓口
0120-85-7755
10:00~18:00 年中無休(年末年始除く)
企業プレスリリース詳細へ
PR TIMESトップへ