長野県下諏訪町が管理する赤砂崎公園において、アルピコリゾート&ライフ株式会社等が「設置等予定者」に選定されました。地域の活性化を目指し、2026年春に複合施設の開業を予定しています。
アルピコホールディングス株式会社の連結子会社であるアルピコリゾート&ライフ株式会社(本社:長野県茅野市、代表取締役:鶴川 守)は、包括連携協定先である株式会社クロスプロジェクトグループ(本社:長野県白馬村、代表取締役:辻 隆)と共同で、長野県 下諏訪町が管理する赤砂崎公園内おいて公園施設を設置管理するための計画書を提出し、「設置等予定者」として選定されましたので、お知らせいたします。
本事業は、下諏訪町が進めているグランドデザインの実現に向けて、諏訪湖畔に位置する赤砂崎公園の一角において、地域の自然・観光資源を活かした新たな複合施設を整備・運営するものです。
地域の皆さまや観光客が集い、「楽しさ・ときめき」を感じられる空間の創出を通じて、諏訪湖エリアの魅力向上と賑わいの創出を目指します。
1.赤砂崎公園 設置管理許可 概要
設置管理許可主体:下諏訪町
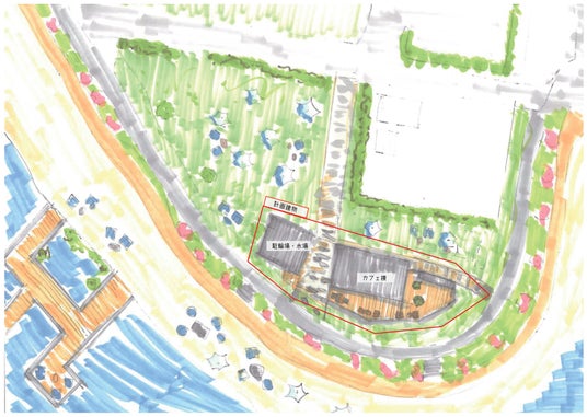
設置管理許可対象地:赤砂崎公園右岸広場砥川ふれあい渚 2,541.11平方メートル
契約期間:10年間
2.施設概要(予定)
施設名称:SUWA Cominal(スワコミナル)(仮称)
主な機能:飲食、レジャー・アウトドアレンタル、キャンプ場運営
建築面積:約200平方メートル (予定)
開業時期:2026年春(予定)
設計:株式会社ワークスゼロ(本社:長野県下諏訪町)
運営事業者:アルピコ・クロスプロジェクト共同事業体
■コンセプト
「地域と人、人と人を結ぶ町の拠点、諏訪湖エリアの新たな集いの場、観光資源の創造」
本施設は、赤砂崎公園を訪れるすべての方々にとって、「立ち寄りたくなる場所」「もう一度訪れたくなる場所」となることを目指します。富士山ビューをはじめとする湖畔の美しい風景を楽しみながら滞在できる拠点として、カフェ、アクティビティ、キャンプ場など多彩なコンテンツを展開予定です。
また、公園と一体となった開かれた空間づくりを通じて、地域の新たな魅力を発信してまいります。


企業プレスリリース詳細へ
PR TIMESトップへ